当前位置:首页/案例/案例详情页

钦州新城吾悦广场_吾悦广场127平米装修效果图_现代风格

设计师:张济骞创建时间:2021-03-26 16:09:03

楼盘

面积
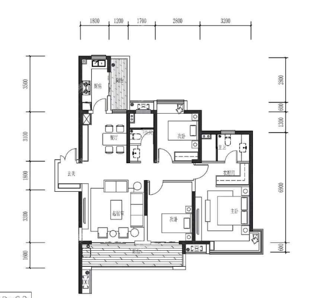
127㎡

户型
3室2厅2卫

风格
现代

本案设计理念:

2021年3月30日-【钦州创艺装饰cy1997】钦州新城吾悦广场装修效果图采用的是现代风格设计,业主庞先生追求时尚且实用的家居环境,因此全屋配色以灰白为主要的色调,以小面积的浅蓝色为点缀,打造一个有亮点又不浮夸的潮流空间。这套案例中玄关柜、餐边柜、阳台柜和衣柜一应俱全,为业主提供了强大的储物空间,深受庞先生喜爱。

峰和四季130平米新中式风格

专业整装报价

预约新家装修方案

为了互联网安全,我们已对您的个人信息加密*

猜你想看

查看更多>>