当前位置:首页/案例/案例详情页

黔西南峰和四季小区-峰和四季139平米装修效果图_新中式风格

设计师:袁振创建时间:2020-10-07 15:32:31

楼盘

面积
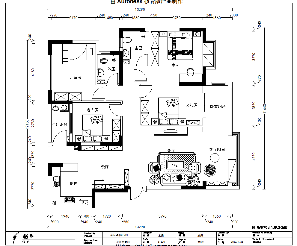
139㎡

户型
3室2厅2卫

风格
中式

本案设计理念:

2020年10月10日-【兴义创艺装饰cy1997】黔西南峰和四季139平米的这套新中式风格装修效果图。设计师在满足客户的需求的前提下,考虑风水因素,餐厅和客厅中间太宽敞,所以在入户处设计了一个鞋柜装饰隔断改善

峰和四季130平米新中式风格

专业整装报价

预约新家装修方案

为了互联网安全,我们已对您的个人信息加密*

猜你想看

查看更多>>