当前位置:首页/案例/案例详情页

大理幸福里-129平美式复古风格装修效果图-创艺装饰cy1997

设计师:夏春梅创建时间:2019-05-05 16:42:44

楼盘
幸福里

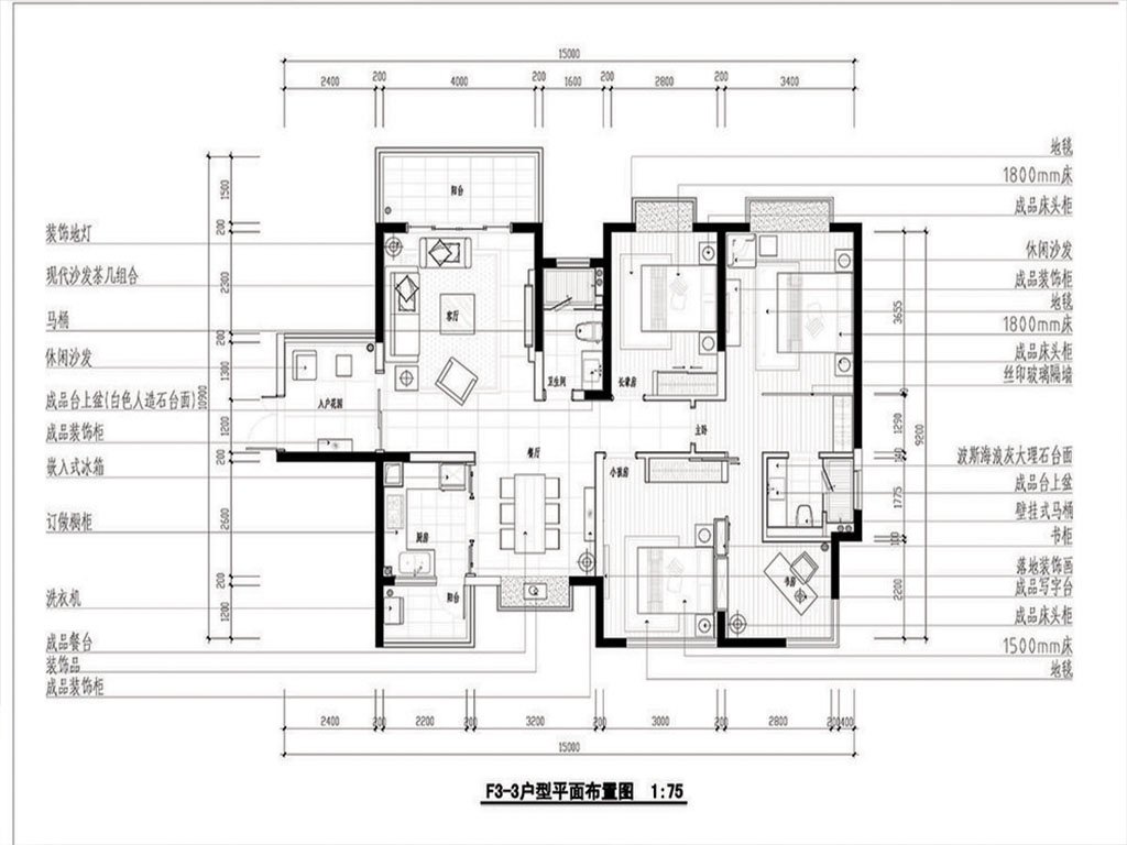
面积
129㎡

户型
3室2厅1卫

风格
美式

本案设计理念:

【大理创艺装饰】美式风格,顾名思义是来自于美国的装修和装饰风格。是殖民地风格中 著名的代表风格,某种意义上已经成了殖民地风格的代名词。美国是个移民国家,欧洲各国各民族人民来到美洲殖民地,把各民族各地区的装饰装修和家具风格都带到了美国,同时由于美国地大物博,极大的放开了移民们对尺寸的欲望,使得美式风格以宽大,舒适,杂糅各种风格而著称。

峰和四季130平米新中式风格

专业整装报价

预约新家装修方案

为了互联网安全,我们已对您的个人信息加密*

猜你想看

查看更多>>